Grip-Engineering

 

info@grip.de

 

 

Back

 

TH50+SW5-SM40-0-90-B  9,5kg  Peel  2021-10-07  01

TH50+SW50-SM40

 

Special peel test fixture

with adjustable peel angles 0° to 90°,

and reduced plate movement

 

more

tn_TH50-W130 fix1 fix2 IMG_2483-

TH50+FXLaxb

TH50 with attached rails

more

TH50-TT300x400-L250+SW5-H250+THS347-300x400-6T-QC_±90°_peel_test_01

TH50-TT300x400-L250+SW5-H250
+
THS347-300x400-6T-QC

 

90° peel test fixture for adhesives

Adjustable peel angle ±90°

 

more

tn_TH50 Magnetadapter TH240k-S30 TH7-5

TH50 + TH7-5 + TH240k-S30

TH50 peel test fixture

TH240k-S30 vice grip with magnet adapter

TH7-5 eccentric roller grip


more

TH50-TT370x500-Am16_2023-07-21

TH50-TT370x500-Am16+SW5

 

Special peel test fixture

Peel plate 500x370 mm

Adjustable peel angle 30°

Coupling Am16

Aluminium

Description: Description: tn_TH50-SW50  45°-.jpg

TH50-SW5-45°

 

Adjustable angle peel test fixture for adhesives variable adjustable angle

 

Winkeleinstellbare Abzugsvorrichtung für Klebeverbindungen Variabler Winkel

more

TH50-S62-VDI2019

 

Adhesion test fixture for thermoplastic elastomers on substrates
according to VDI2019

Steel, nickel-plated

TH50-S48

Description: Description: tn_TH50-SL160   TH50-39 Schlittenlänge 160mm

TH50-SL160

 

Slide length 160 mm       

movement ±30 mm  for chamber usage

 

TH50-SC-Af159-5.8kg_2023-09-26

TH50-SC-Af159

Special 90° Peel test fixture for adhesives

For single column machine
Max. load 5 kN
Steel, nickel-plated

Temperature range: 0...+70°C

Coupling Af159

Description: Description: TH50-W185-M3-D15-xb-2018-04-10-

TH50-W185-M3-D15

TH50-W260+SW1-Af20

TH50-W260+SW1-Af20

 

Special width 260 mm

Suitable for peel test on 2 samples simultaneously

Adjustable peel angle 0-30°

Max. load 5 kN

Steel, nickel-plated

Coupling Af20

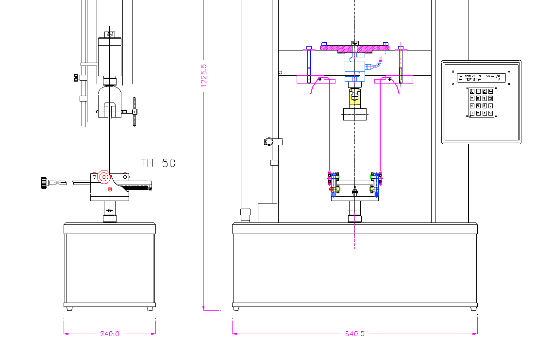
TH50-in-machine

TH50-in-machine

info@grip.de

 

LX 27 Nov 2025

TOP